Moderne und flexi­bel nutzbare Grundrisse

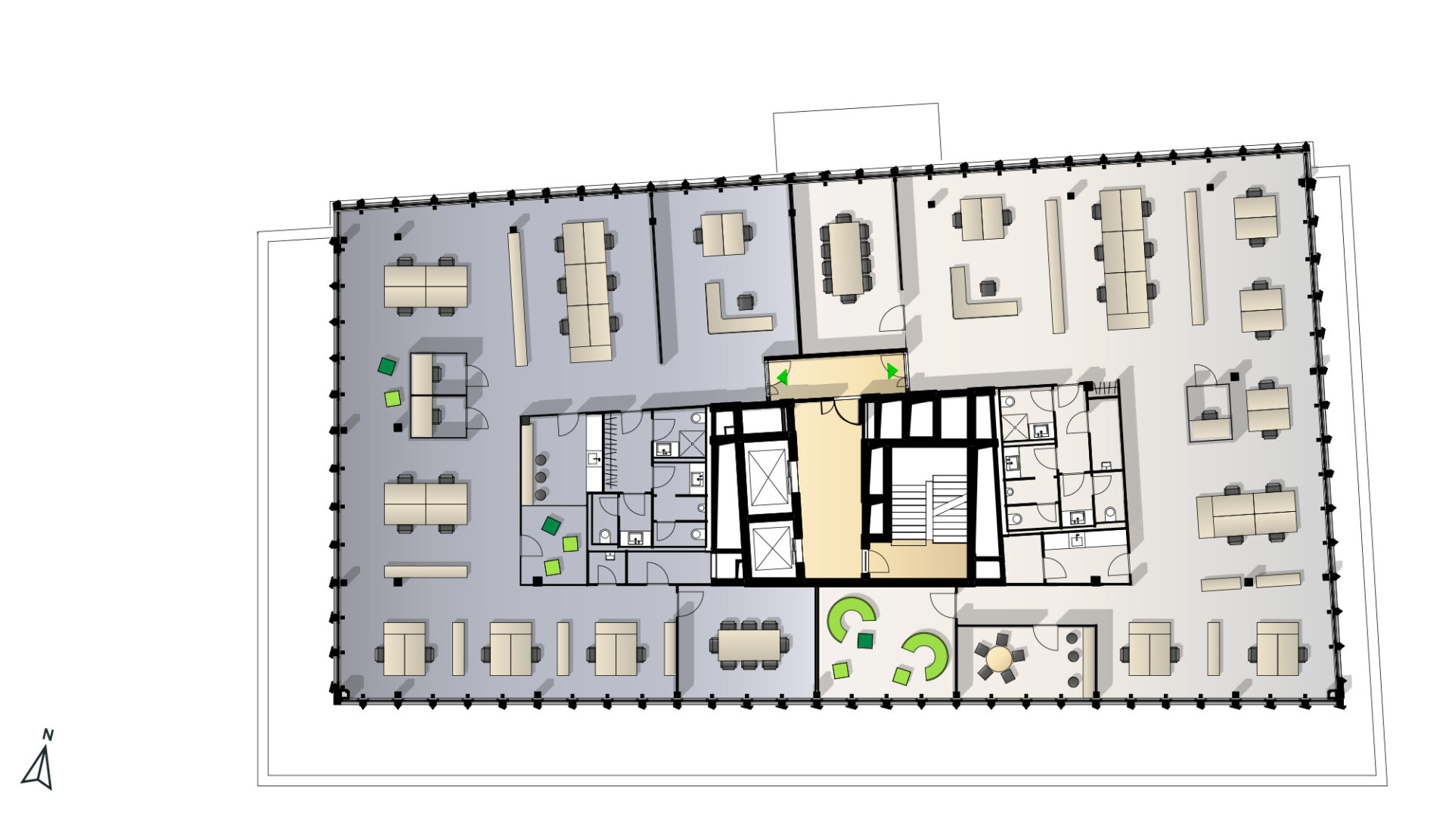
Erdge­schoss
Variante Open Space

Beispiel­hafte Raumaufteilung

Mietflä­che 1: ca. 425 m² | 28 AP

Mietflä­che 2: ca. 385 m² | 24 AP

Gemein­schafts­flä­che

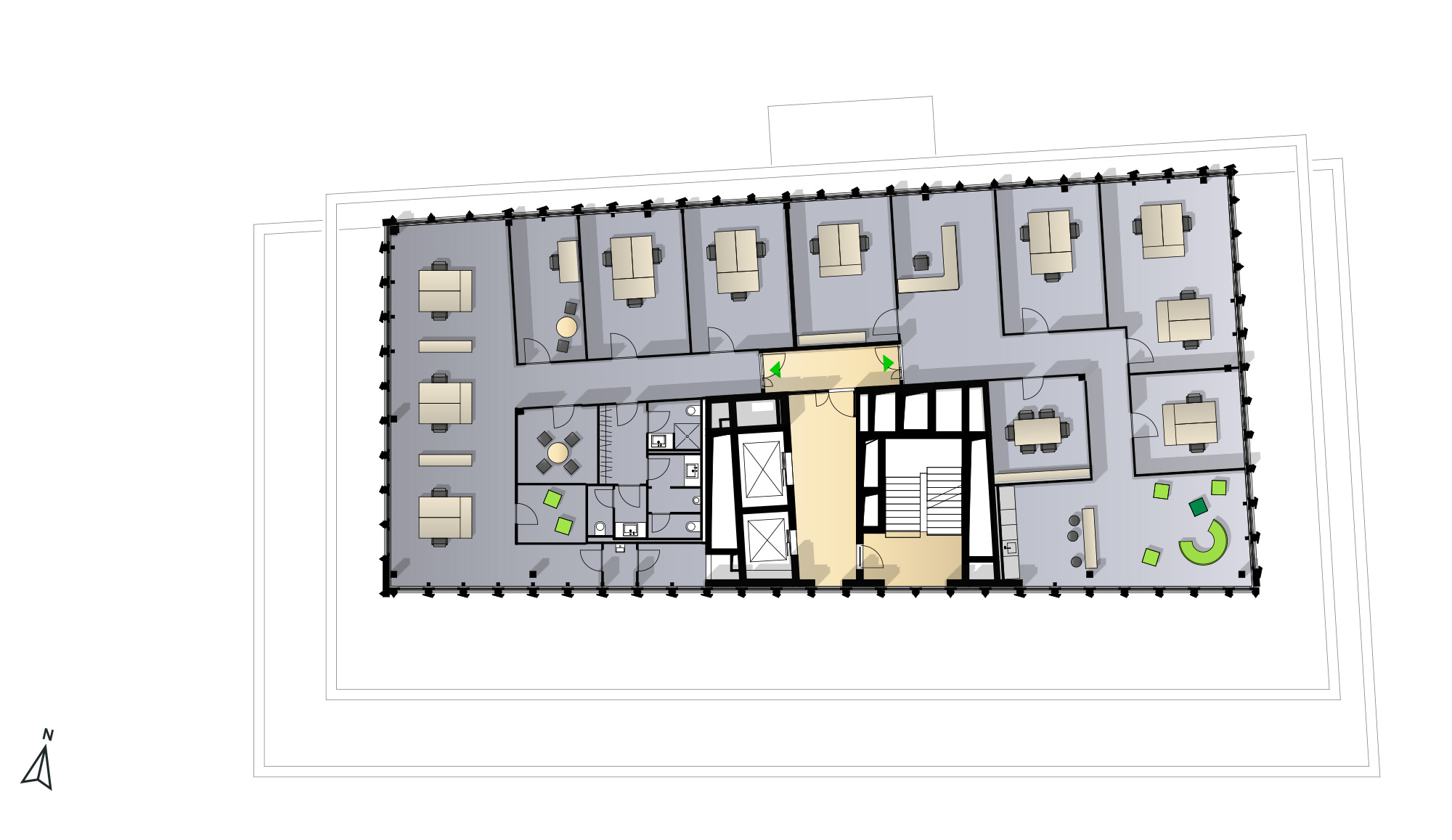
1. Oberge­schoss
Variante Open Space

Beispiel­hafte Raumaufteilung

Mietflä­che 1: ca. 446 m² | 26 AP

Mietflä­che 2: ca. 450 m² | 28 AP

Gemein­schafts­flä­che

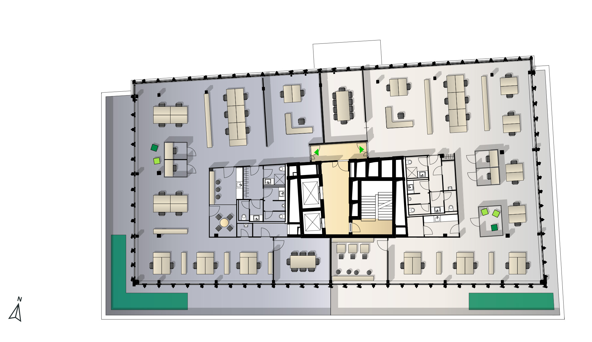
Erdge­schoss
Variante Open Space

Beispiel­hafte Raumaufteilung

Mietflä­che 1: ca. 425 m² | 28 AP

Mietflä­che 2: ca. 385 m² | 24 AP

Gemein­schafts­flä­che

1. Oberge­schoss
Variante Open Space

Beispiel­hafte Raumaufteilung

Mietflä­che 1: ca. 446 m² | 26 AP

Mietflä­che 1: ca. 450 m² | 28 AP

Gemein­schafts­flä­che

2. Oberge­schoss
Variante Zellen- und Gruppenbüros

Beispiel­hafte Raumauf­tei­lung und Musterbüro

Mietflä­che 1 / Muster­büro: ca. 450 m² | 23 AP

Mietflä­che 2: ca. 453 m² | 27 AP

Gemein­schafts­flä­che

3. Oberge­schoss
Variante Zellenbüros

Beispiel­hafte Raumaufteilung

Mietflä­che 1: ca. 449 m² | 22 AP

Mietflä­che 2: ca. 453 m² | 22AP

Gemein­schafts­flä­che

2. Oberge­schoss
Variante Zellen- und Gruppenbüros

Beispiel­hafte Raumauf­tei­lung und Musterbüro

Mietflä­che 1 / Muster­büro: ca. 450 m² | 23 AP

Mietflä­che 2: ca. 453 m² | 27 AP

Gemein­schafts­flä­che

3. Oberge­schoss
Variante Zellenbüros

Beispiel­hafte Raumaufteilung

Mietflä­che 1: ca. 449 m² | 22 AP

Mietflä­che 2: ca. 453 m² | 22AP

Gemein­schafts­flä­che

4. Oberge­schoss
Variante Open Space

Beispiel­hafte Raumaufteilung

Mietflä­che 1: ca. 442 m² | 25 AP – inkl. 95 m² Terrassenfläche

Mietflä­che 2: ca. 454 m² | 25 AP – inkl. 77 m² Terrassenfläche

Gemein­schafts­flä­che

Grünflä­chen

5. Oberge­schoss
Variante Open Space

Beispiel­hafte Raumaufteilung

Mietflä­che 1: vermietet

Mietflä­che 2: vermietet

Gemein­schafts­flä­che

4. Oberge­schoss
Variante Open Space

Beispiel­hafte Raumaufteilung

Mietflä­che 1: ca. 442 m² | 25 AP – inkl. 95 m² Terrassenfläche

Mietflä­che 2: ca. 454 m² | 25 AP – inkl. 77 m² Terrassenfläche

Gemein­schafts­flä­che

Grünflä­chen

5. Oberge­schoss
Variante Open Space

Beispiel­hafte Raumaufteilung

Mietflä­che 1: vermietet

Mietflä­che 2: vermietet

Gemein­schafts­flä­che

6. Oberge­schoss
Variante Zellenbüros

Beispiel­hafte Raumaufteilung

Mietflä­che 1: vermietet

Gemein­schafts­flä­che

Grünflä­chen

7. Oberge­schoss
Variante Zellenbüros

Beispiel­hafte Raumaufteilung

Mietflä­che 1: vermietet

Gemein­schafts­flä­che

6. Oberge­schoss
Variante Zellenbüros

Beispiel­hafte Raumaufteilung

Mietflä­che 1: vermietet

Gemein­schafts­flä­che

Grünflä­chen

7. Oberge­schoss
Variante Zellenbüros

Beispiel­hafte Raumaufteilung

Mietflä­che 1: vermietet

Gemein­schafts­flä­che

1. Unter­ge­schoss
Stell­plätze und Lager

24 PKW-Stell­plätze, davon 8 E-Stell­plätze (8 PKW-Stell­plätze vermietet)

30 Fahrrad­stell­plätze

Lager ca. 179 m²

Gemein­schafts­flä­che

2. Unter­ge­schoss
Stell­plätze und Lager

25 PKW-Stell­plätze (12 PKW-Stell­plätze vermietet)

Lager ca. 8 m²

Gemein­schafts­flä­che

1. Unter­ge­schoss
Stell­plätze und Lager

24 PKW-Stell­plätze, davon 8 E-Stell­plätze (8 PKW-Stell­plätze vermietet)

30 Fahrrad­stell­plätze

Lager ca. 179 m²

Gemein­schafts­flä­che

2. Unter­ge­schoss
Stell­plätze und Lager

25 PKW-Stell­plätze (12 PKW-Stell­plätze vermietet)

Lager ca. 8 m²

Gemein­schafts­flä­che

Flächen­über­sicht

Kontakt

Ansprech­part­ner

Daniel J. Gedack
Stepha­nie Röttger

Quantum Projekt­ent­wick­lung GmbH
Dornbusch 4
20095 Hamburg
www.quantum.ag

+49 40 41 43 30 - 725
vermietung@quantum.ag

Vermie­tung durch:

Dennis Schäff­ler

ANTEON Immobi­lien GmbH & Co. KG
Ernst-Schnei­der-Platz 1
40212 Düsseldorf
www.anteon.de

+49 211 58 58 89 73
+49 174 177 79 21
d.schaeffler@anteon.de

Wir freuen uns auf Ihre Anfrage:
Dennis Schäffler
d.schaeffler@anteon.de
Tel. +49 211 58 58 89 73